Home
Browse
Sell
Rent
Invest
Cities ▾
Popular Cities
Toronto
Brampton
Mississauga
Caledon
Vaughan
Milton
Hamilton
Kitchener
View All Cities →
OnTheRidge : Rosehaven
Freehold Towns
Image Gallery
Get Full Info
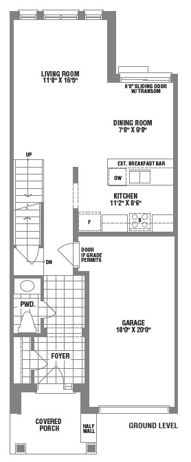
Floor Plans
Get Full Info
I am Interested
I am Interested