Home
Browse
Sell
Rent
Invest
Cities ▾
Popular Cities
Toronto
Brampton
Mississauga
Caledon
Vaughan
Milton
Hamilton
Kitchener
View All Cities →
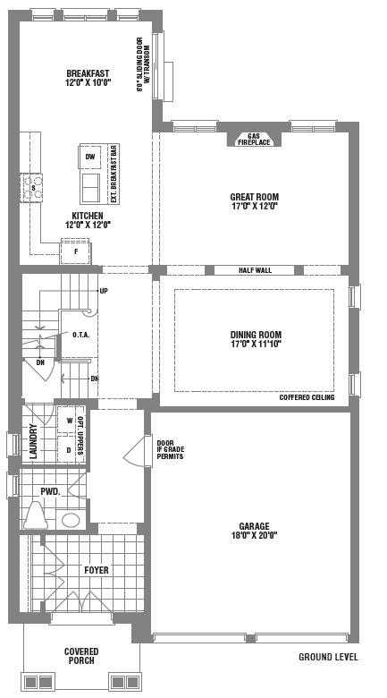
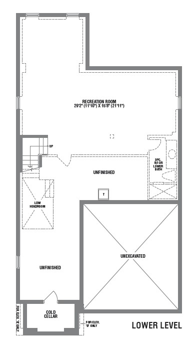
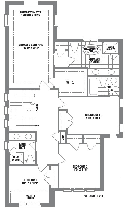
OnTheRidge : Rosehaven
Deatched 40 ft Singles
Elev. A, B & C : 2,620 sq.ft.
Image Gallery
Get Full Info
Floor Plans
Get Full Info
I am Interested
I am Interested